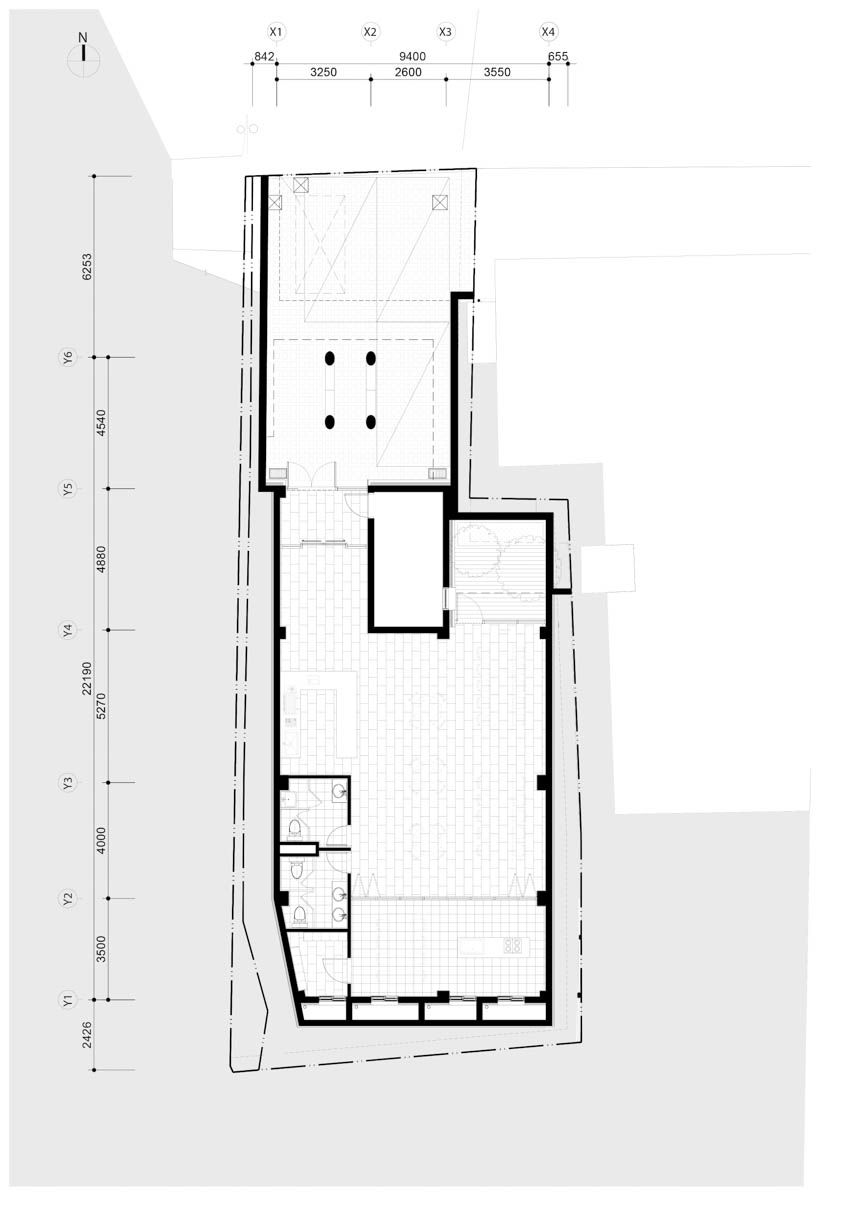
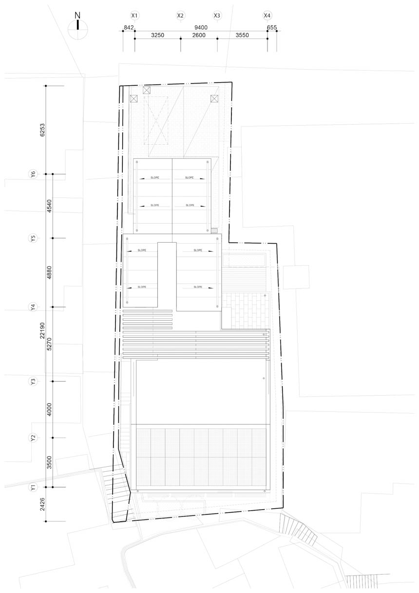
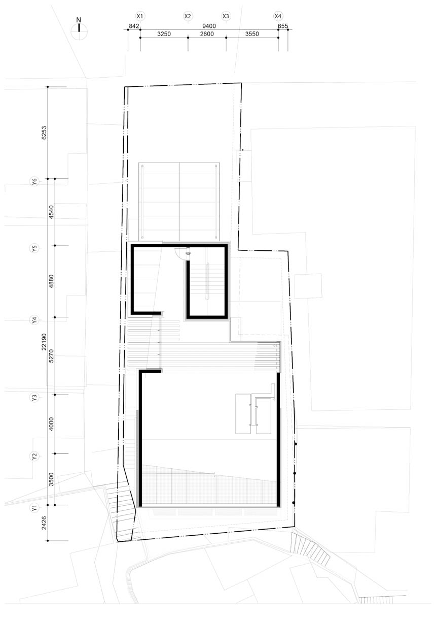
works/2019 소나무 협동마을 주민공동시설_2019 이이케이 2021. 2. 26. 11:32 소나무 협동마을 주민공동시설설명글~~~~~~~~~~~~~~~~~~~~~~~~~~~~~~~~~~~~~~~~~~~~~~~~~~~~~~~~~~~~~~~~~~~~~~~~~~~~~~~~~~~~~~~~~~~~~~~~~~~~~~~ 위치 : 용도 : 규모 : 연면적 : 설계기간 : 사진 : 공유하기 게시글 관리 이이케이 건축사사무소 'works/2019' Related Articles 우이초 유치원_2019 영등포구 키움센터 리모델링_2019 당산역 환경개선 타당성 검토_2019 난곡동 골목길 정비_2019