본문 바로가기

news

18년 7월-8월 뉴스레터

18년 7월-8월 뉴스레터

 

 

1. 해솔직업사관학교 신축 

 

춘천시 도시계획 심의를 받았으며 경관 및 배치등에 대한 몇가지 보완사항을 반영하여 진행중입니다. 춘천시의 경우 약 14개의 관련부서 협의를 거친후 도시계획 심의를 올릴수 있고 심의결과에 따라 건축허가 계획을 보완하여 건축허가를 득할수 있습니다. 예상보다 인허가 일정이 길게 소요됩니다. 건축허가를 득한후 실시도면 및 내역서 작업을 마무리하여 납품할 예정입니다.
(공동설계: (주)인테그레이션, 근보양 앤 파트너스)

 

 

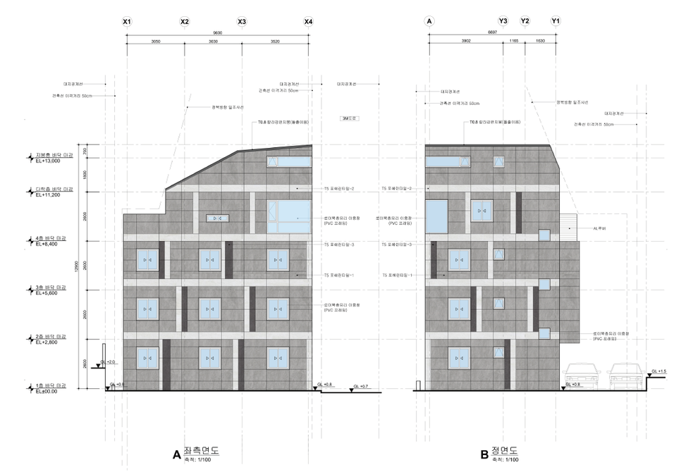
2. 평택 청북지구 상가 신축


7월말부터 공사에 들어가 무더위속에서도 순조롭게 공사가 진행중입니다. 현재 상주감리도 같이 수행하고 있으며 흙막이 공사및 지하 공사는 특별히 신경을 쓰며 진행중입니다. 공사진행상황은 블로그를 통해서 전해드리고 있습니다.

 

 

 

3. 사당동 다중주택 설계


작은 대지안에서 최대한의 면적과 주차등을 해결하고 상부층에 건축주의 단독주택까지 제안하는 계획이었습니다. 해당부지가 경관지구에 속해있어 작은 규모임에도 도시계획 경관심의를 통과하였고 현재 건축허가를 득하여 실시설계중입니다. 실시설계 과정에서 세부적인 유닛등의 조정과 입면의 계획및 디테일등이 더 세심하게 조정될 예정입니다.

 

 

4. 가리봉동 앵커시설 B동 리모델링 공사및 감리진행


가리봉동 앵커시설 A동은 거의 마무리가 되어가는 중입니다. B동은 무더위와 노후된 조적벽체등을 고려하여 보강공사가 부분적으로 진행되는 중이어서 생각보다 늦게 진행중입니다. 노후된 조적건물의 리모델링인만큼 안전을 고려하여 여러상황을 예상하여 작업중입니다.

 

 

 

5. 회현역 노후빌딩 리노베이션 검토


남대문 시장 입구인 회현역의 노후빌딩을 리노베이션 및 증축하는 계획을 검토중입니다. 지구단위계획구역이며 주차대수를 확보하기 어려워 고층건물의 신축이 사업성이 낮아 증축 및 기존건물 리노베이션으로 검토중입니다.