18년 5월-6월 뉴스레터
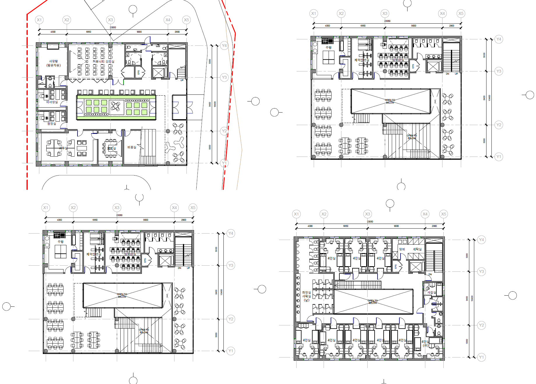
1. 해솔직업사관학교 신축
학교 측과 협의하여 기본 평면계획이 진행 중입니다. 학교는 단순히 학교에서 교육을 받는 탈북학생을 위한 교실과 기숙사뿐만 아니라 학생들의 자립을 돕는 네트워크 위 거점공간으로 운영하기 위한 공간을 협의 중입니다. 10월에 착공에 들어갈 예정으로 진행 중입니다.
(공동 설계: (주)인테그레이션, 근보양 앤 파트너스)

2. 평택 청북지구 상가 신축
현재 건설사가 선정되어 착공신고 준비 중입니다. 7월 초에 착공에 들어가 약 12개월의 예상 공사기간을 거쳐 2019년 7월 준공을 목표로 진행될 예정입니다.
3. 양동초등학교 다목적 강당 증축 설계공모 장려상 수상
양동초등학교 다목적 강당 증축 설계공모에서 장려상을 수상했습니다.
기존 학교 현황에서 다목적 강당을 증축하는 것으로 강당의 큰 스케일의 규모가 학교 주변의 기존 저층주거지의 풍경에 부담되지 않게 계획하면서 지형을 이용한 경사로로 하여금 아이들에게 새로운 등굣길의 풍경을 만드는 것에 주안점을 두었습니다.
(공동 설계: 근보양 앤 파트너스)


4. 가재울 도서관 신축 설계공모
기존 주차장 부지에 어린이를 위한 도서관을 증축하는 프로젝트이다. 기존 도서관이 가진 내부 공간의 획일화된 구조와 어린이 도서관이 가지고 오는 형태적인 틀에서 벗어나 오픈형 공간을 강조한 도서관으로 새롭게 설계하고자 하였다.
건물은 최대한 대지에 펼쳐서 저층으로 만들고 중앙에 책장과 동선 및 공용공간이 통합된 코아를 두고 그 둘레도 다양한 공간을 펼쳐놓아 뛰어다니기를 좋아하는 아이들이 자유롭게 움직이면서도 항상 중앙의 책과 주변의 다양한 공간을 연계해서 독서, 공부 등을 할 수 있게 계획하였다.
(공동 설계: 근보양 앤 파트너스)





5. 사당동 다중주택 설계
사당동에 근린생활시설(사무실)+1인 가구를 위한 다중주택을 설계 중입니다. 7월에 경관심의를 거쳐 허가를 완료할 예정입니다.

6. 가리봉동 앵커시설 B동 리모델링 공사 및 감리 진행
기존 진행하던 가리봉동 앵커시설 A동에 이어서 B동도 공사에 들어가 약 5개월간의 공기로 진행될 예정입니다. 감리도 같이 진행되는 프로젝트로 설계의도 구현과 리모델링 현장의 이슈들을 정리하기 위해 많은 노력이 필요할 것입니다.
7. 서울시 도로 위 임대주거 연구
서울시에서는 미래 도시공간에 대한 연구로써 기존 도시의 기반시설과 가용토지의 분리 관계에서 어쩔 수 없이 발생되는 도시구조의 단절 등 이를 해결하는 방법으로 도시공간의 기반시설(도로, 철도 등)과 건축물을 입체 개발하는 방안에 대해 연구 중입니다. 서울시내 대상지를 선정하여 6명의 건축가가 참여한 아이디어 연구를 진행 중입니다.


8. 기타
강화~석모도 케이블카 사업을 위한 사업시행인가를 위해 혜인이엔씨, 3D 구조 엔지니어링과 작업 중입니다.


