17년 7월-8월 뉴스레터
1. (주) ENK 학운 3단지 신축 설계
건물의 배치는 장방형의 대지에 최대 건축면적을 확보하는 것으로 시작하였습니다. 거기에 생산(창고), 서비스 공간, 다용도 공간 등을 조닝 하여 전체 평면계획을 협의하였습니다. 공장, 창고 용도이지만 작은 불편함도 비효율로 이어질 수 있기 때문에 근무부서별 담당자와 여러 번의 회의를 하여 기둥 간격, 동선, 프로그램 등을 정하였습니다. 여기에 추후 증축을 고려한 설계를 진행 중이어서 1차 공사에 반영할 사항 등을 빠짐없이 챙겨서 진행 중입니다.


2. 장위동 도시재생 활성화구역 가꿈주택 골목길 개선사업
작은 골목길의 현황과 그곳만의 특징을 찾아내기 위해 고민이 많았습니다. 다양한 관점에서 바라보면서 계획 개념을 잡아가는 중입니다. 




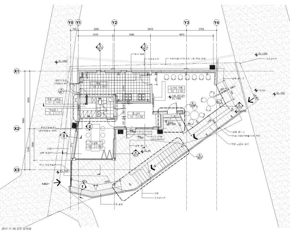
3. 가리봉동 도시재생사업 앵커시설 리모델링
확정된 계획안을 기준으로 실시설계를 진행 중에 있습니다. 오래된 건물이면서 진행과정 중 기존 단층 건물이 2층으로 증축된 사실을 알게 되었고 구조보강, 건축마감, 보수 등 여러 부분에서 리모델링 공사 시 문제가 없도록 세세한 부분까지 고려하여 진행 중에 있습니다.

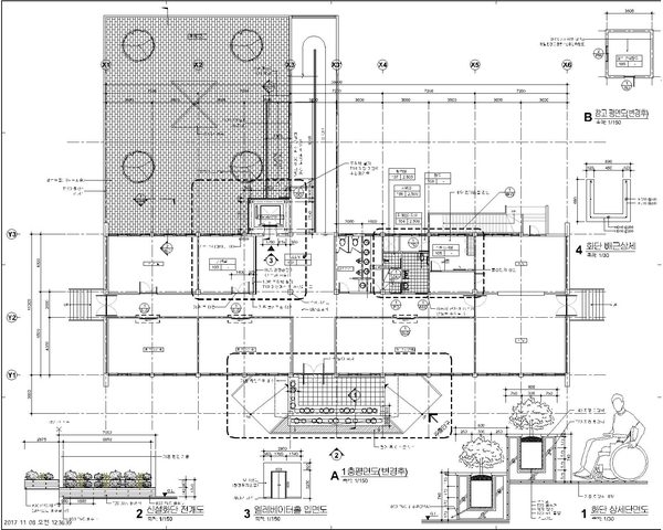
4. 회현역 빌딩 리모델링
대지의 위치에 따라 다양한 부동산 개발 가능성이 있음에도 기존 용도 그대로 활용하며 건물의 노후화만 진행 중인 건물의 증축 및 리모델링을 제안 중입니다. 앞으로 지속적으로 이와 같은 사업성 검토 컨설팅 및 리모델링 설계를 진행하려고 합니다.


5. 평택 청북지구 상가 신축
평택 청북지구 상가 신축을 다시 진행하고 있습니다. 현재 청북지구 개발 현황을 고려하여 기존 규모를 재검토하여 투자 대비 사업성에 대한 분석을 진행한 후 최종 규모를 확정한 후 올해 안에 허가를 받을 예정입니다.

6. 한국한센복지협회 병원동 리모델링 및 엘리베이터 증축
한국한센복지협회 병원동의 내부 리모델링 및 엘리베이터 증축 리모델링을 진행하였습니다.



