17년 9월-10월 뉴스레터
1. (주) ENK 학운3단지 신축설계
학운3단지의 입면 계획은 단지내 규정에 의해 정해진 색상을 쓰게 되어 있습니다. 대부분의 공장 건물이 여러 편의성 때문에 판넬을 사용하기 때문에 재료와 색상에 따른 제약이 있었습니다. 전체적으로 건축주가 원하는 무거운 색상을 위주로 하되 2층 사무공간은 포인트 색상을 두어 변화를 주었고 1층 마당쪽으로는 판넬위에 타일붙임을 적용하여 자연스러운 텍스쳐의 외관을 형성하여 주변 건물과는 차별화 하면서 근무자에게 금속보다는 따뜻한 느낌이 들도록 계획하였습니다.



2. 장위동 도시재생활성화구역 가꿈주택 골목길 개선사업
골목길 및 담장과 노후화된 건물의 외관까지 전체적으로 개선이 되어야 하지만, 공적인 영역이 우선되어 바닥 포장을 적극적으로 검토하는 중입니다. 주민설명회등을 열어 협의하려고 노력중이지만 협조가 잘 되지 않아 어려움이 많습니다. 다양한 방법으로 현재 진행중인 계획안을 알리기 위해 노력도 같이 하고 있습니다.




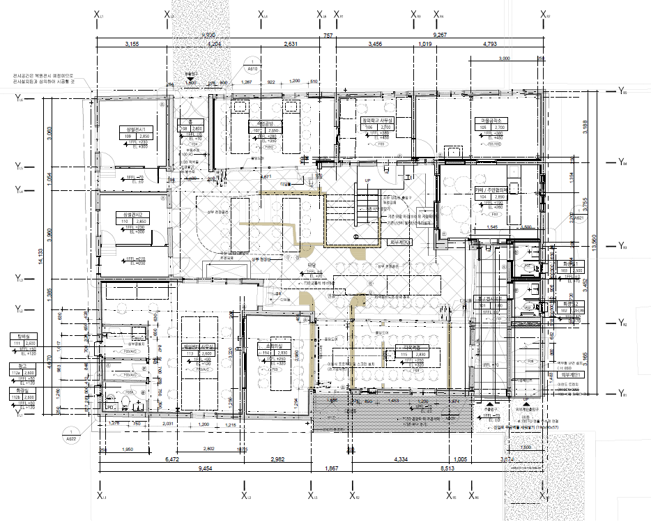
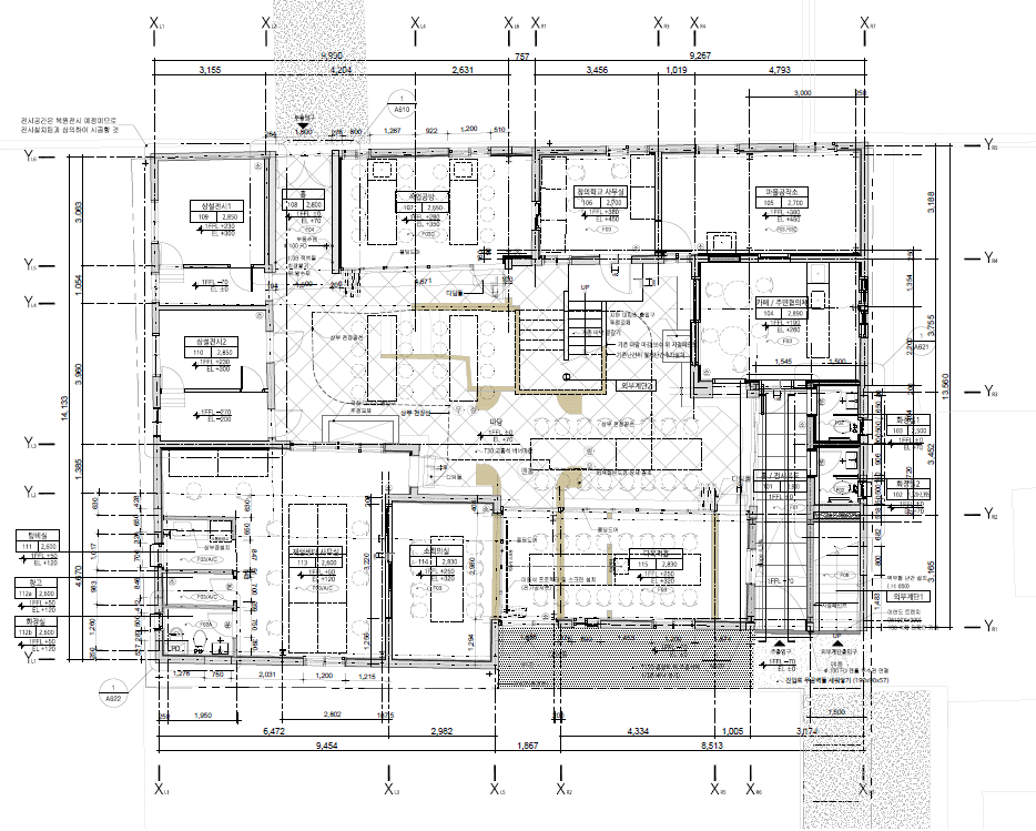
3. 가리봉동 도시재생사업 앵커시설 리모델링
기존에 가리봉동 지역에서 '벌집'이라 불리었던 복잡한 내부구조를 가진 건물이어서 현장 조사후 실시도면을 작성하는 과정에서도 시공성, 마감, 공간 활용성 등 고려한 수정작업이 계속 진행되고 있습니다. 실시도면 작업후에는 내역작업을 거쳐 최종 마무리될 예정입니다

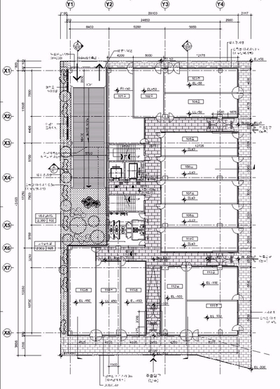
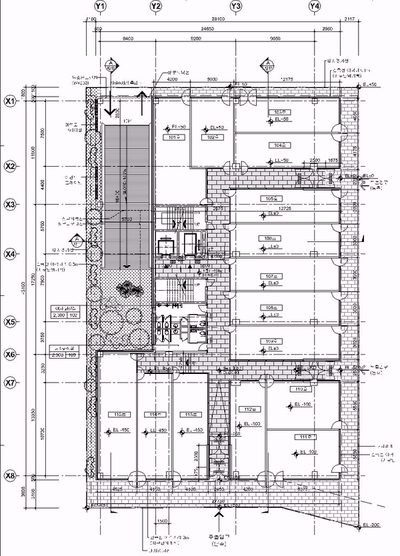
5. 평택 청북지구 상가 신축
현재 청북지구의 개발 상황 및 대지가 위치한 곳의 상권, 추가 상가 수요등을 면밀히 분석하여 기존 지하2층, 지상 7층 규모를 지하1층, 지상 5층 규모로 조정하여 진행할 예정입니다. 주변 부지의 개발이 이어지고 있는 상황에서 주변 상가와는 차별화되는 계획으로 성공적인 사업이 될수 있도록 노력중입니다.

6. "B"사 부품 창고 입찰 및 인터뷰 참여
기존 범한판토스 인천공항 및 평택 물류센터 등에 대한 참여경력등을 인정받아 "B"사의 안성 부품 창고 증축설계에 대한 입찰 및 인터뷰에 참여하였습니다.
(협업 : 근보양 앤 파트너스)
7. "자은 숲속마을" 컨설팅
강원도 홍천 "자은 숲속마을" 단지 개발에 대한 컨설팅을 진행하였습니다. 기존 마스터 플랜에 대한 전반적인 검토 및 토목 계획, 단지내 분양 필지에 대한 적절한 조정등이 포함되었습니다.



